位置:首頁 > 鍋爐產品 > 德國卡吉斯燃氣熱水鍋爐
德國卡吉斯鼓風式鑄鐵鍋爐太陽系列

產地:希臘
結構:落地式
燃料:燃油、燃氣
燃燒方式:鼓風式
熱效率:94%
產品類別:家用、商用型模塊熱水鍋爐
工作壓力:0.6MPa—0.8MPa
功率范圍:24-84KW
適用范圍:商業、高層住宅、獨棟別墅、賓館、學校、醫院、辦公樓等。
詳細介紹:

|
型號 |
SND2 |
SND3 |
SND4 |
SND5 |
SND6 |
SND7 |
|
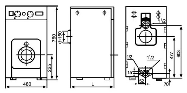
外殼長度L(mm) |
380 |
480 |
580 |
680 |
780 |
880 |
|
煙道出口尺寸(mm) |
150 |
150 |
150 |
150 |
150 |
150 |
|
型號 |
供熱量 KW |
熱效率 % |
燃料消耗量 |
燃燒室 背壓 mmH2O |
爐體 長度 mm |
排煙口 直徑 mm |
水容積 L |
運輸 重量 Kg |
||
|
天然氣 Nm3/h |
液化氣 Kg/h |
燃油 Kg/h |
||||||||
|
SND2 |
24.42 |
94.10 |
2.59 |
2.07 |
2.19 |
2 |
380 |
150 |
9.0 |
92 |
|
SND3 |
37.22 |
93.90 |
3.95 |
3.16 |
3.34 |
3 |
480 |
150 |
12.3 |
119 |
|
SND4 |
48.85 |
94.20 |
5.19 |
4.13 |
4.37 |
4 |
580 |
150 |
16.0 |
145 |
|
SND5 |
60.47 |
94.00 |
6.42 |
5.12 |
5.42 |
5.5 |
680 |
150 |
19.5 |
173 |
|
SND6 |
72.11 |
94.50 |
7.65 |
6.08 |
6.43 |
7.5 |
780 |
150 |
23.0 |
200 |
|
SND7 |
83.74 |
94.60 |
8.89 |
7.05 |
7.46 |
8 |
880 |
150 |
25.5 |
227 |
主要尺寸

上一篇:德國卡吉斯鼓風式鑄鐵鍋爐銀河系列
下一篇:沒有了

